Start Oferta Domy

Domy

Nowoczesne i energooszczędne domy jednorodzinne dwulokalowe, położone w spokojnej okolicy, nieopodal lasu, przy ul. Słowackiego w Miękowie, gm. Czerwonak. Nowoczesna bryła i przemyślany układ powierzchni. Pomieszczenia doświetlone dużymi oknami.

Na sprzedaż posiadamy dwa lokale, 5A/1 oraz 5A/3

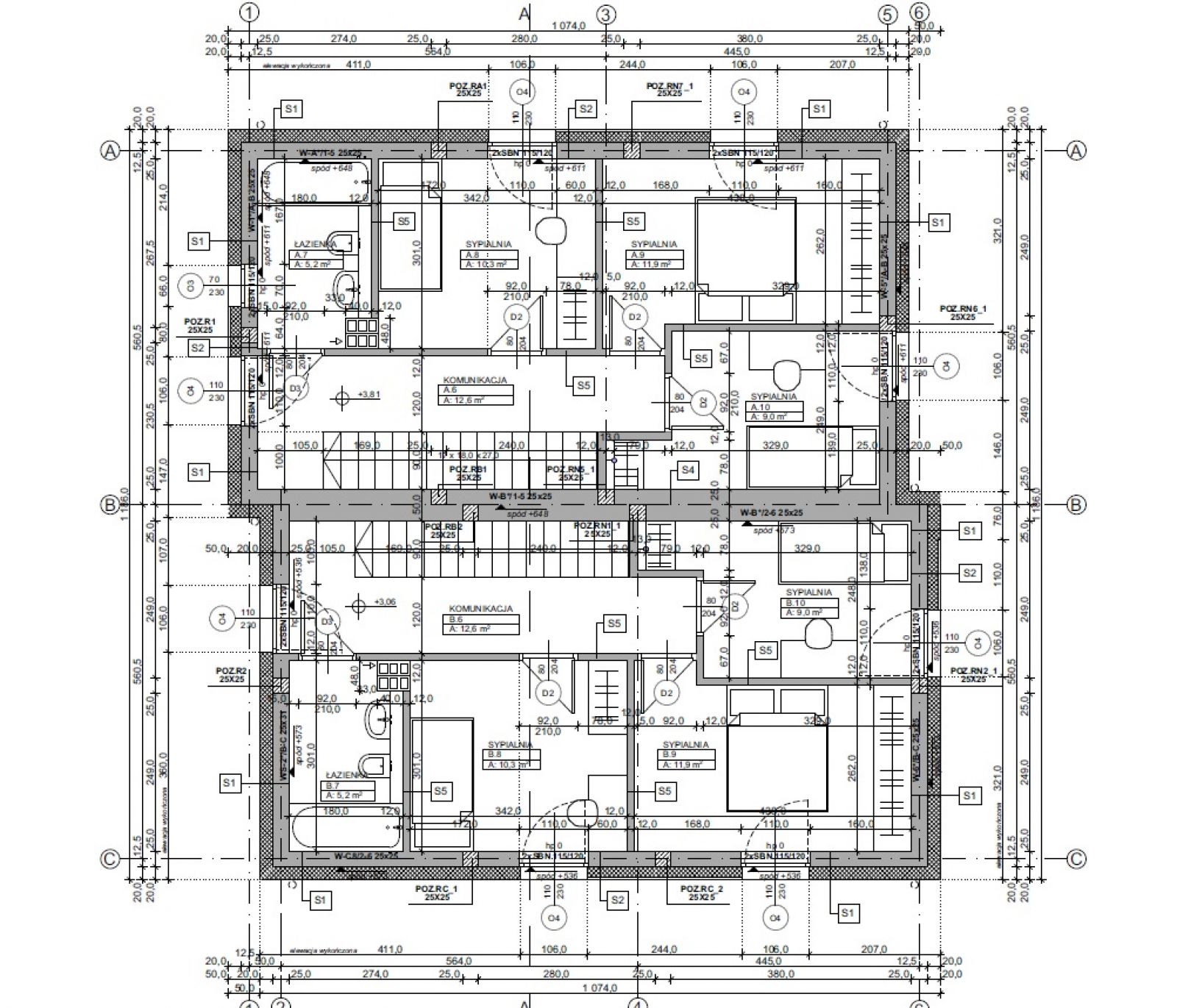
Układ domów

Lokale na dwóch kondygnacjach składają się z następujących pomieszczeń

Parter

  • komunikacja 8,73 mkw z miejscem na dużą szafę w zabudowie,
  • pomieszczenie gospodarcze 4,05 mkw, gdzie znajduje się pompa ciepła z zasobnikiem wody (200 l), przyłączem na pralkę
  • łazienka z prysznicem 3,76 mkw,
  • półotwarta kuchnia 7,50 mkw z dużym oknem na ogród,
  • pokój dzienny 22,78 mkw z dwoma dużymi oknami i wyjściem na taras,

Piętro:

  • sypialnia 8,78 mkw,
  • sypialnia 9,08 mkw,
  • sypialnia 10,75 mkw,
  • łazienka 3,97 mkw,
  • komunikacja 12,60 mkw z dużym oknem!

Ceny

Połówka domu o powierzchni użytkowej 91,90 mkw (całkowitej 95,80 mkw). Położona na przynależnej działce 258 mkw.

  • Cena 680.000 zł brutto
  • Cena zawiera 8% VAT,
  • Kupujący nie płaci 2% podatku PCC

Dodatkowo

  • Przestrzeń nieużytkowego poddasza do indywidualnego zagospodarowania przez kupującego (w standardzie schody strychowe).
  • Lokal sprzedawany w stanie deweloperskim - gotowy do odbioru.
  • W inwestycji zastosowano ekologiczne rozwiązania tj. pompa ciepła - ogrzewanie podłogowe w całym domu oraz konstrukcja dachowa przygotowana pod instalację paneli fotowoltaicznych.
  • Wystawa ogrodu południowo-zachodnia.

Standard wykonania

  • Budynek budowany z pustaków ceramicznych POROTON 24 cm, ocieplony styropianem 20 cm.
  • Między lokalami podwójna ściana 2x24 cm ze szczeliną dylatacyjną wypełnioną styropianem.
  • Ściany wewnętrzne beton komórkowy 12 cm.
  • Na poddaszu izolacja z wełny mineralnej 30 cm, sufit podwieszany z płyt gipsowo kartonowych.
  • Dach konstrukcja krokwiowo jętkowa, kryty dachówką ceramiczną Bogen Plano 11.
  • Okna PCV trzyszybowe, współczynnik Uw 0,9 W/m2K, na zewnątrz w kolorze antracyt, wewnątrz kolor biały.
  • Rolety zewnętrzne, wszystkie z elektrycznym napędem.
  • Parapety okienne zewnętrzne stalowe w kolorze antracyt.
  • Drzwi wejściowe w kolorze antracyt, wzmocnione, izolowane. Odprowadzenie wody deszczowej rurami drenażowymi.
  • Podejście do lokalu oraz taras wykonane z kostki betonowej, podjazd na dwa samochody z kostki betonowej.
  • Ogrodzenie panelowe, wykonane od strony działek sąsiadujących oraz dzielące ogrody, bez frontu.

Lokalizacja

W sąsiedztwie domy jednorodzinne, przedszkole 600 m, szkoła 3 km, stadnina koni, las. Komunikacja miejska - 600 m przystanek autobusowy (linie 312, 394, 396). Ulica Słowackiego utwardzona kostką brukową, lampy uliczne.

Pełne media: prąd, woda, kanalizacja

Zainteresowała Cię nasza oferta? Zadzwoń lub napisz. Chętnie doradzimy!

PERADO sp. z o.o.
ul. Wolsztyńska 23/3
60-631 Poznań
Godziny otwarcia

pon-pt: 8:00 - 16:00

Zadzwoń do nas 502-260-125
Wyślij wiadomość